您如何刮擦并站在探照灯后面,如何引导自己?
探照灯是一种照明装置,专为傀儡表面的外部和人工照明而设计。对于此类设备的安装,在现场安装时,使用了聚光灯专用支架,这在某种程度上符合将产品固定到墙上元件的方法或特殊设计。
遏制:1。 Kakvi sa 刮擦聚光灯 2. 你如何自己引导支具
Kakvi sa 刮擦聚光灯
如果你安装泛光灯或上照灯,你不能在没有安装支架的情况下引导它们。在这种情况下,产品可以安装在支撑物上或页面表面的顶部。
奈-在塔子中传播修饰、命名损失、设计从类型“皇冠”的产品类别。
典型的横杆起:
- “L” - 从高度到结构和页带上的悬垂,在身体的自安装照明的顶部表征一切。他们根据几何尺寸和厚度的技术对身体进行照明;
- “T”——假设它被放置在光源的极点上,并且它的特征在于营地的偏差大小;
- “V”和“H”——都用脊上悬垂的尺寸来表征,将其投射到自组装的顶部。
当从“皇冠”类型(根据格式指向圆形)构建时,假设他们会竖起一根杆子或一个泛光灯。
它固定在澄清(桅杆)支撑的主食上,并且可以以某种方式开始变态:
- 在螺栓的帮助下,这是用螺栓拧紧固定的;
- xom,戴上螺母和垫圈;
- 法兰上的方法,用螺栓和螺母固定所有扭结。
与不同的制造商,他们命名了一系列的泛光灯支架,因此在选择设计时,请仔细阅读建议并选择合适的型号。
现代的 LED射灯 这些 se 不仅具有良好的光特性,而且温度低,几何尺寸小。这些指示器允许您在此类结构的明亮顶部设置光源,其中一些来自您自己的国家,从而使您能够在 tyahnoto 地方的地面上实现高质量的澄清。
设计在支架上,特别适用于低发热量的LED射灯,可以在裂缝上固定、旋转和爬行。
有时他们将照明体放在栅栏立面的顶部,它们在相邻区域执行照明功能,并且它们仍然作为建筑的照明,在一些装置的顶部。
在水池中,立面主食的设计可能有所不同。
此类设计的一些选项是可能的,旨在安装在墙壁明亮顶部的通风口上,如下图所示:

Scobie 用于垂直安装在表面上(在栅栏的立面上) 返回 kjm sdzharzhanieto ↑
你如何自己引导支具
Nay-lesniyat 启动并引导 LED 聚光灯 e 后面的支架,而不是从结构的金属部分的傀儡。
如果消费者知道如何使用焊接设备和手持式电动工具,则下图显示:
Tosi 模型的生产工作是有悖常理的,不知何故如下:
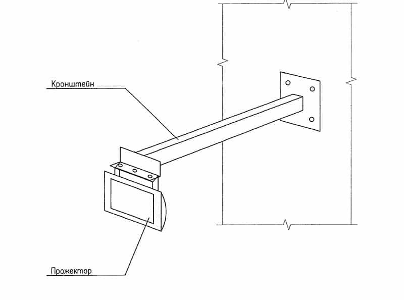
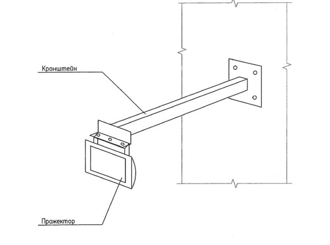
- 这个细节是从一个横截面为 40 × 40 毫米的方管上撕下来的,它应该对应于自然照明(照明,局部,一般等),某种泛光灯和 osiguri;
- 每个细节都从 metalen gl gl ss 部分 40 × 40 × 4 毫米,mu treabva 的长度和符合聚光灯长度的长度,用于安装;
- 镂空从眩光中打入细节,进入位置,对应于打开通往聚光灯的门;
- 尺寸为 150 × 150 mm 的细节是从金属板上划伤的,其 debelin 为 2.0 mm,余烬中的痕迹刺穿了用于固定到墙壁支架的安装开口;
- 通过冲泡将工件制备的碎片集中到一个单一的结构中;
- 球形支架 e 覆盖有一层土壤和一丝博亚迪桑。

用于安装在聚光灯上的 nai-prostate 支架选项,由金属型材制成
如何在墙上安装聚光灯
将支架连接到墙壁的其他方式取决于墙壁所用的材料。
Ako 投影仪、支架上的 montiran、darvena 顶部的 e montiran 是一个不错的设计,然后 darvo can 的钉子或螺丝都使用某种紧固件。 Ako stenata e rotten,然后使用远程或安装销钉,借助专门配备的设备(螺丝刀,气动工具,手枪等)进行锤击。 E,由于stenata是混凝土,togawa可以并被螺栓的锚使用。
供你参考!如果您使用膨胀销和螺栓锚栓,则无需预先安装它们,它们会冲出一个直径与紧固件直径相对应的开口。
聚光灯支架上的设计可以完全不同,尤其是当它对准 raka 时。在这种情况下,一切都取决于探照灯上的装甲、材料的可用性和主教练的想象力,一些工作已经完成。



